Cerchi una villetta vicino al mare ma distante dal caos cittadino?
Ci troviamo in C. da Pellegrino a circa 3 km da Puntasecca, Casuzze, Kaucana e a soli 4 km dal Porto di Marina di Ragusa.
Gli interni della villetta sono stati interamente ristrutturati con dotazioni moderne e impianti nuovi.
Esternamente l’immobile richiede qualche lavoro di finitura ma è già dotato di tutti i confort come climatizzatori, stufa a legna, infissi a taglio termico, fotovoltaico da 7,5 kw, solare termico, pozzo trivellato.
La proprietà è composta da:
– circa 1000 m² di spazio verde, orto piantumato con alberi da frutto, verande e area parcheggio.
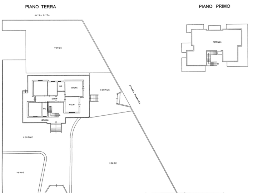
– Abitazione principale di circa 110 m² con spaziosa area living e cucina a vista, 3 camere da letto, 2 bagni.
– Garage/Taverna indipendente di circa 50 m² con bagno e ripostiglio
All’esterno troviamo inoltre 2 accessi carrabili, alberi secolari, doccia idromassaggio, ampio parcheggio coperto al servizio di auto o camper, Terrazzo vista mare con accesso da scala esterna in muratura.
Tutto progettato per poter vivere comodamente l’immobile sia d’estate che d’inverno.
Quindi cosa aspetti?
Chiama per prenotare una visita!
[RIF. M16]
– Clicca sul pulsante Virtual Tour per una visita immersiva ed interattiva dell’immobile –
























































